In één van de mooiste straten van de binnenstad ligt Peperstraat 17: een karaktervol en sfeervol herenhuis waar historie en comfort samensmelten. Achter de fraaie, monumentale gevel vind je een warm thuis vol authentieke details, hoge plafonds, glas-in-loodramen en een intieme patio-tuin. De woning is met zorg onderhouden, vrijwel volledig instapklaar en ademt in alles de Bossche sfeer van vroeger, met het comfort van nu.
INDELING
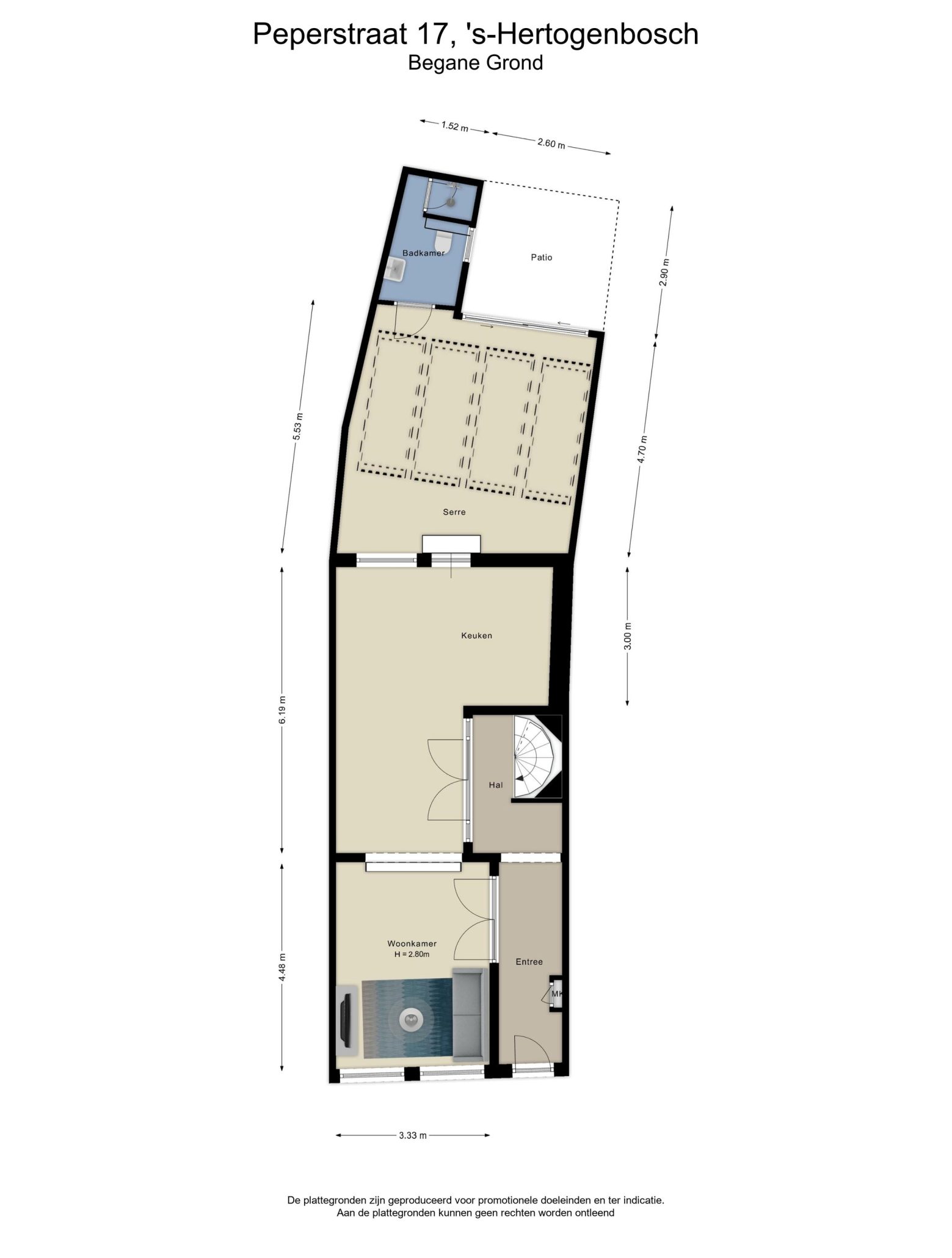
Zodra je de fraaie voordeur opent, betreed je een statige hal met marmeren vloer met glasdeuren. Het glas-in-lood in de bovenlichten aan de voorzijde vangt het daglicht en brengt meteen warmte in de ruimte. Via de dubbele deuren loop je naar de woonkamer aan de straatzijde: een sfeervolle plek met hoge ramen die uitzicht bieden op het levendige straatbeeld. Hier geniet je van het spel van licht en kleur dat de glas-in-loodramen creëren.
Een kleine verhoging leidt naar de ruimte waar de keuken geplaatst kan
LEES MEER
In één van de mooiste straten van de binnenstad ligt Peperstraat 17: een karaktervol en sfeervol herenhuis waar historie en comfort samensmelten. Achter de fraaie, monumentale gevel vind je een warm thuis vol authentieke details, hoge plafonds, glas-in-loodramen en een intieme patio-tuin. De woning is met zorg onderhouden, vrijwel volledig instapklaar en ademt in alles de Bossche sfeer van vroeger, met het comfort van nu.
INDELING
Zodra je de fraaie voordeur opent, betreed je een statige hal met marmeren vloer met glasdeuren. Het glas-in-lood in de bovenlichten aan de voorzijde vangt het daglicht en brengt meteen warmte in de ruimte. Via de dubbele deuren loop je naar de woonkamer aan de straatzijde: een sfeervolle plek met hoge ramen die uitzicht bieden op het levendige straatbeeld. Hier geniet je van het spel van licht en kleur dat de glas-in-loodramen creëren.
Een kleine verhoging leidt naar de ruimte waar de keuken geplaatst kan worden in het middengedeelte. De klassieke indeling met kastenwand en een mogelijk kookeiland maakt deze plek tot het hart van het huis, ideaal voor lange diners of ontspannen ontbijten. De serre, met haar bijzondere glas-in-looddetails en overvloed aan licht, verbindt binnen en buiten op natuurlijke wijze. Achterin bevindt zich nog een praktische ruimte met douche en toilet.
Onder de woning ligt een ruime, stahoogte kelder met tongewelfjes, droog en koel, perfect als wijnkelder of opslagruimte. Het oorspronkelijke gewelf is in de loop der tijd vervangen door een stevig betonnen plafond, zonder
de charme te verliezen. Een authentiek element dat herinnert aan de bouwperiode en karakter toevoegt aan het geheel.
De eerste verdieping ademt dezelfde karaktervolle sfeer. Aan de voorzijde ligt een royale kamer die dankzij de hoge schuiframen met glas-in-lood een prachtige lichtval heeft. Deze kamer kan uiteraard ook uitstekend dienen als werkkamer of bibliotheek. Aan de achterzijde vind je een tweede slaapkamer met openslaande deuren naar een balkon over de volle breedte van de gevel, een heerlijke plek om de dag rustig te beginnen of af te sluiten. Tussen beide kamers ligt de fraaie, moderne badkamer met inloopdouche en een dubbele wastafel in meubel. Tegenover de badkamer bevindt zich het separaat toilet.
De bovenste etage biedt twee ruime slaapkamers, elk met een eigen karakter. Het lichte schilderwerk en dakkapellen zorgen voor veel licht en een gevoel van ruimte. De balken zijn deels zichtbaar gebleven, wat bijdraagt aan de
sfeervolle uitstraling. Hier is bovendien ruimte voor een tweede badkamer, zodat deze verdieping ideaal is voor gezinnen of gasten. In de berging bevindt zich de cv-installatie en extra opbergruimte.
Via de serre bereik je de beschutte patio-tuin: een intieme buitenruimte waar je, omgeven door hoge muren, geniet van volledige privacy. De bestrating is onderhoudsvriendelijk en biedt ruimte voor een eettafel of loungeset. Dankzij de zuidwest ligging profiteer je verrassend genoeg nog van de zon, terwijl de stadse geluiden op de achtergrond vervagen. Een heerlijke plek voor een glas wijn in de avond of een rustige koffiepauze in de ochtend.
BIJZONDERHEDEN
– Rijks monumentaal pand, onderdeel van beschermd stadsgezicht.
– Monumentnummer: 21790; Huis met gebosseerd gepleisterde gevel uit circa 1870; vensters met kuiven in stuc.
– Authentieke details zoals glas-in-lood, paneeldeuren en hoge plafonds.
– Sfeervolle woonkamer met uitzicht op de straatzijde.
– Prima ruimte voor het plaatsen van een keuken naar eigen smaak.
– Vier royale slaapkamers en twee badkamers.
– Stahoogte kelder met origineel tongewelf.
– Patio-tuin met veel privacy.
– Badkamer en sanitair gemoderniseerd in 2025.
– Centraal gelegen, tussen de markt, de parade, het Bossche Broek, maar ook de ontsluitingswegen zijn goed bereikbaar.
– kortom: Prachtig monumentaal pand in het bourgondische centrum van ‘s-Hertogenbosch!
LOCATIE
Peperstraat 17 ligt midden in het historische centrum van ’s-Hertogenbosch, om de hoek van de Markt, de Uilenburg en de Sint-Jan. Hier woon je te midden van cultuur, gastronomie en gezelligheid, met winkels, cafés en restaurants op loopafstand. Toch ervaar je in de woning zelf rust en privacy, een unieke combinatie die zeldzaam is in de binnenstad.