Deze verrassend ruime twee-onder-een-kapwoning uit 1948 combineert karakter met modern wooncomfort en beschikt over een riant multifunctioneel bijgebouw. De woning is in 2023 grondig verbouwd en uitgebreid, waarbij onder andere een royale woonkeuken is gerealiseerd met grote glazen schuifpuien naar de tuin. Binnen tref je een sfeervolle woonkamer met gashaard, een praktische werkkamer op de begane grond en drie slaapkamers met een moderne badkamer op de verdieping. Het vrijstaande bijgebouw, momenteel ingericht als schoonheidssalon, biedt uitstekende mogelijkheden voor werken of ondernemen aan huis.
INDELING
Via de voordeur betreed je de woning en kom je binnen in een compacte hal met toegang tot de woonkamer, de werkkamer aan de voorzijde en de trapopgang naar de eerste verdieping.
De woonkamer vormt een fijne en sfeervolle leefruimte. De ruimte is voorzien van een tegelvloer in warme houtlook met comfortabele vloerverwarming, strak afgewerkte plafonds met inbouwspots en een sfeervolle gashaard. Aan de achterzijde zorgt een
LEES MEER
Deze verrassend ruime twee-onder-een-kapwoning uit 1948 combineert karakter met modern wooncomfort en beschikt over een riant multifunctioneel bijgebouw. De woning is in 2023 grondig verbouwd en uitgebreid, waarbij onder andere een royale woonkeuken is gerealiseerd met grote glazen schuifpuien naar de tuin. Binnen tref je een sfeervolle woonkamer met gashaard, een praktische werkkamer op de begane grond en drie slaapkamers met een moderne badkamer op de verdieping. Het vrijstaande bijgebouw, momenteel ingericht als schoonheidssalon, biedt uitstekende mogelijkheden voor werken of ondernemen aan huis.
INDELING
Via de voordeur betreed je de woning en kom je binnen in een compacte hal met toegang tot de woonkamer, de werkkamer aan de voorzijde en de trapopgang naar de eerste verdieping.
De woonkamer vormt een fijne en sfeervolle leefruimte. De ruimte is voorzien van een tegelvloer in warme houtlook met comfortabele vloerverwarming, strak afgewerkte plafonds met inbouwspots en een sfeervolle gashaard. Aan de achterzijde zorgt een schuifpui voor een prettige verbinding met de veranda en de tuin. De kleine ramen aan de voorzijde zijn voorzien van rolluiken.
Aan de voorzijde van de woning bevindt zich de werkkamer. Deze ruimte is ideaal als thuiswerkplek, studeerkamer of speelkamer en beschikt over dezelfde doorlopende tegelvloer in houtlook als de woonkamer, wat zorgt voor een rustige en moderne uitstraling.
Vanuit de woonkamer loop je door naar de royale woonkeuken, die in 2023 is gerealiseerd door een uitbreiding van de woning. Hier ervaar je direct de ruimte en het licht. De keuken biedt volop werkruimte en is uitgerust met diverse inbouwapparatuur, waaronder een inductiekookplaat met geïntegreerde afzuiging, een Quooker kokend waterkraan, oven, magnetron, vaatwasser en een koel-vriescombinatie.
De keuken beschikt daarnaast over airconditioning en akoestische plafondpanelen. Twee grote glazen schuifpuien en een loopdeur zorgen voor veel daglicht en geven direct toegang tot de tuin en de overkapping.
De keuken en bijkeuken zijn afgewerkt met een neutrale tegelvloer met vloerverwarming.
In de praktische bijkeuken vind je de achterdeur, een modern toilet met zwevend closet en fonteintje, de witgoedaansluitingen met maatwerk kastombouw en toegang tot de kelder.
Via de trapopgang met fraaie verlichting bereik je de overloop op de eerste verdieping. Vanaf hier heb je toegang tot drie slaapkamers en de moderne badkamer.
De gehele verdieping is verzorgd afgewerkt met een pvc-vloer en strak gestuukte plafonds met inbouwspots, wat zorgt voor een rustige en eigentijdse uitstraling.
Alle slaapkamers beschikken over een te openen (dak)raam, waardoor er prettig daglicht binnenvalt en de ruimtes goed te ventileren zijn. De slaapkamer aan de voorzijde is daarnaast voorzien van een praktische vaste kast en een rolluik voor het raam.
De badkamer is modern uitgevoerd en van alle gemakken voorzien. Hier vind je een ligbad, een ruime inloopdouche met nis verlichting, een toilet en een dubbele wastafel met meubel. De vloerverwarming zorgt voor extra comfort en maakt deze ruimte tot een fijne plek om de dag te beginnen of juist ontspannen af te sluiten.
Via een vlizotrap is de vliering bereikbaar. Deze bergzolder biedt praktische extra opslagruimte voor seizoensspullen en andere zaken.
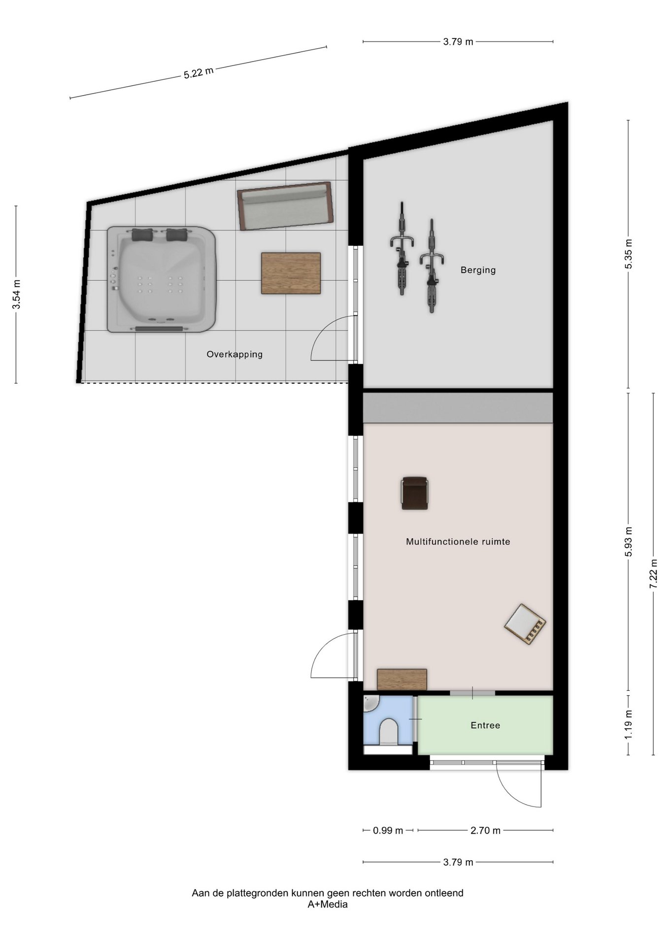
BIJGEBOUW
Een bijzonder pluspunt van deze woning is het ruime bijgebouw dat in 2015 is gerealiseerd. Het gebouw beschikt over een eigen entree, waardoor het uitstekend geschikt is voor werken of ondernemen aan huis.
Bij binnenkomst kom je in een hal die momenteel dienstdoet als wachtruimte, met aansluitend een toilet. Vanuit hier bereik je de werkruimte, die is voorzien van een pantry met (warm)wateraansluiting, een tegelvloer met vloerverwarming en airconditioning. De ruimte is netjes afgewerkt en direct in gebruik te nemen.
Het bijgebouw wordt momenteel gebruikt als schoonheidssalon, maar leent zich voor tal van andere doeleinden. Denk bijvoorbeeld aan een kapsalon, praktijkruimte voor coaching of therapie, een kantoor aan huis, atelier of studio. Ook als hobbyruimte, mantelzorgwoning, gastenverblijf of rustige werkplek biedt deze ruimte volop mogelijkheden.
Dankzij de zelfstandige opzet met eigen entree kun je hier op een prettige manier wonen en werken combineren.
TUIN
Via de schuifpuien in de woonkeuken en de woonkamer stap je zo de tuin in. Direct aan de woning bevindt zich een sfeervolle veranda, waar je heerlijk beschut kunt zitten en in alle rust kunt genieten van het buitenleven, ongeacht het seizoen.
Verderop in de tuin vind je een tweede overkapping. Deze plek leent zich perfect voor lange zomeravonden of juist een rustige plek om je even terug te trekken. Vanuit hier heb je bovendien toegang tot de berging, wat zorgt voor extra praktische opbergruimte.
De combinatie van meerdere zitplekken maakt dat je op ieder moment van de dag een fijne plek in de tuin kunt vinden, of je nu wilt ontspannen in de zon of juist in de schaduw wilt zitten.
BIJZONDERHEDEN
– Twee-onder-een-kapwoning uit 1948.
– In 2023 grondig verbouwd en uitgebreid.
– Aanbouw voorzien van HR++ glas.
– Keukenopstelling uit 2023.
– Airconditioning aanwezig in de woonkeuken.
– Akoestische plafondpanelen in de keuken.
– Vloerverwarming op de gehele begane grond, bijgebouw en berging achter het bijgebouw.
– Vloerverwarming in badkamer.
– Riant multifunctioneel bijgebouw, gerealiseerd in 2015.
– Schilderwerk uit 2023.
– Energielabel C.
– Gelegen nabij basisschool en kinderdagverblijf.
– Centrum van Berlicum op loopafstand.
– Kortom: een verrassend ruime en modern afgewerkte woning met een uniek bijgebouw met eindeloze mogelijkheden!
LOCATIE
Braakven 25 ligt op een fijne centrale locatie in Berlicum, op korte afstand van de basisschool en een kinderdagverblijf. Daarnaast bevindt het gezellige centrum van Berlicum zich op loop-afstand, waar je terechtkunt voor dagelijkse voorzieningen, winkels en horecagelegenheden.
Berlicum staat bovendien bekend om zijn gunstige ligging ten opzichte van ’s-Hertogenbosch. Binnen enkele autominuten bereik je de stad en ook de uitvalswegen richting de A2 en A59.