Bleijendaalseweg 9 – Berlicum

    Vraagprijs
    € 1.350.000,- k.k.
    Vraagprijs € 1.350.000,- k.k.
    Woonoppervlakte 249 m2
    Inhoud 951 m3
    Perceel oppervlakte 2.635 m2
    Bouwjaar 1970
    Energieklasse C
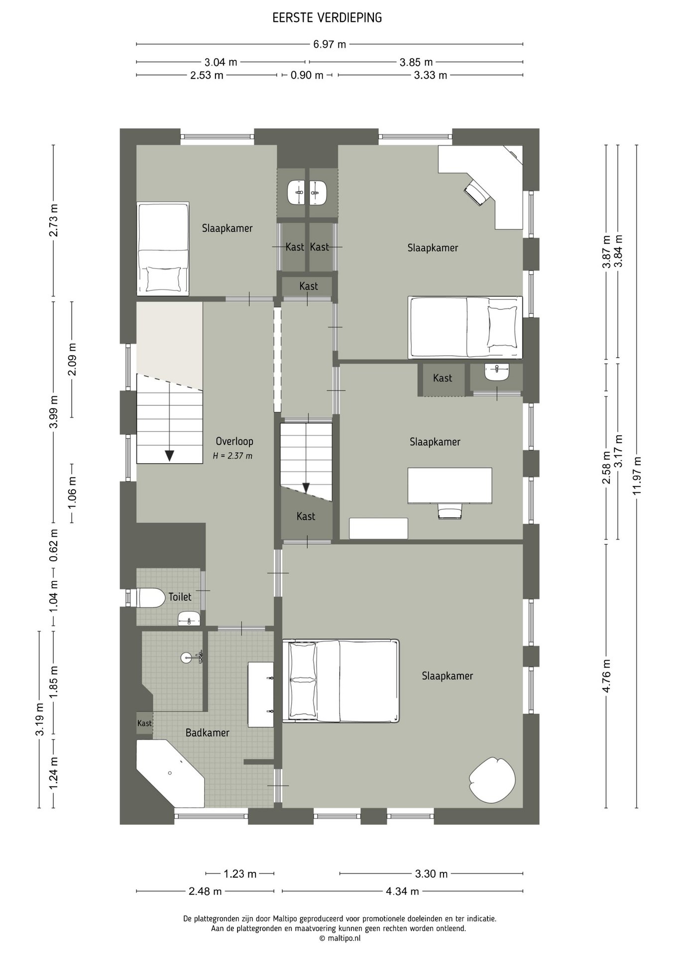
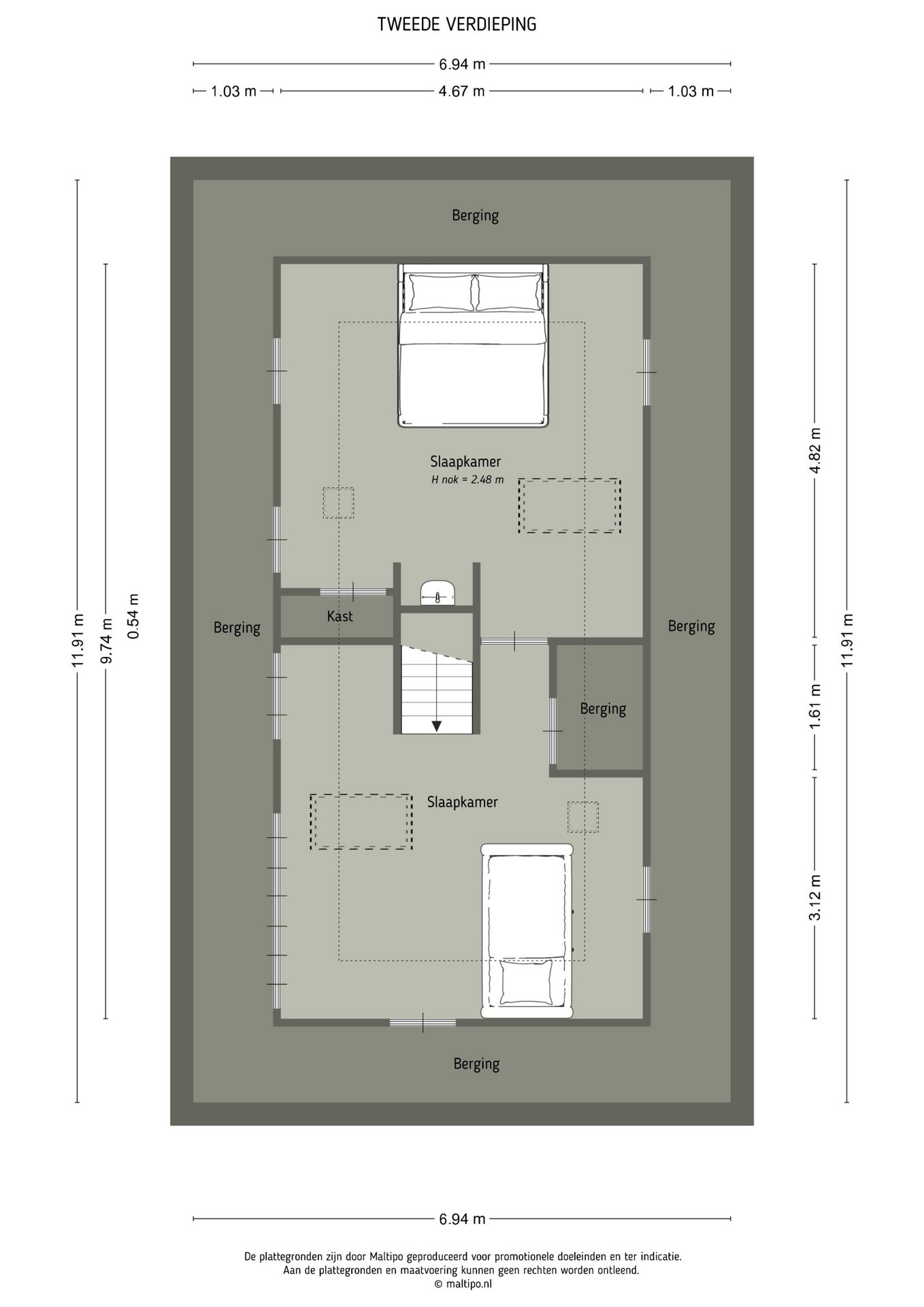
    Aantal slaapkamers 5
    Totaal aantal garages 1

    Aan de lommerrijke Bleijendaalseweg, aan de groene rand van Berlicum, bevindt zich deze vrijstaande woning met een krachtige en tijdloze uitstraling. De woning, geïnspireerd op de Bossche School, kenmerkt zich door harmonieuze proporties, sfeer en een doordachte indeling.
    Met een woonoppervlakte van 249 m², een inhoud van 951 m³ en een uitzonderlijk perceel biedt deze woning een fraaie combinatie van architectonische kwaliteit, ruimte en privacy. Hier woont u in alle rust, omgeven door groen en toch nabij vele voorzieningen.

    INDELING
    Via het overdekte entree wordt u stijlvol en beschut ontvangen. De ruime ontvangsthal vormt direct een voorproefje van de maatvoering die u in de rest van de woning zult ervaren. Dankzij de schuifdeur naar de tuin ontstaat hier al een prettige verbinding tussen binnen en buiten.

    De centrale hal geeft toegang tot de keuken, de werkkamer, de woon-eetkamer en de doorgang naar de bijkeuken. De gehele begane grond is voorzien van

    LEES MEER